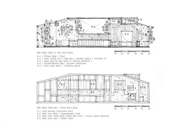
Nhà ống Sài Gòn như chiếc lồng đón nắng gió
Bốn mặt tường bao là những khoảng bê tông đặc đan xen những ô lam sắt giúp không gian trong nhà gần gũi với thiên nhiên bên ngoài.


















Bài: Thái Bình
Ảnh: K59 atelier
Theo VnExpress
Bốn mặt tường bao là những khoảng bê tông đặc đan xen những ô lam sắt giúp không gian trong nhà gần gũi với thiên nhiên bên ngoài.
Bài: Thái Bình
Ảnh: K59 atelier
Theo VnExpress