Nhà phố ngập nắng gió nhờ giếng trời hình cong
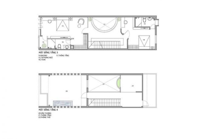
Khoảng thông tầng cong, đặt giữa nhà giúp mọi phòng ngủ đều có hai mặt thoáng và sáng sủa. Gia chủ chỉ phải dùng đèn điện sau 17h.
















Bài: Minh Trang
Ảnh: Bùi Minh Quốc
Thiết kế: Story Architecture
The VnExpress
Link nguồn: https://vnexpress.net/doi-song/nha-pho-ngap-nang-gio-nho-gieng-troi-hinh-cong-4064064.html